极尚设计 | 有灵魂,方能过目不忘

浏览: 作者: 来源: 时间:2017-12-07 分类:首页2

邂逅伊颜


做为Glamour总监回国后第一个商业Case

我们的甲方Youray Beauty给了我们一百分的信任

所有细节的设计都交给了我们

在过程中也是无条件尊重设计师的想法


一个好的作品,需要的不止是一个优秀的设计师

也需要一个懂得“放手”的甲方

不去干预设计师的构思,事先沟通好彼此的想法是重要的基石

对于那些自己想法繁多,控制欲极强的客人

我们都选择敬而远之

因为他们适合撸起袖子自己上,还能省下不少设计费。


参与一个空间从无到有的过程其实是一个很奇妙的事情

每一个步骤都仿佛在用自己的灵魂重新赋予这个地方新的意义

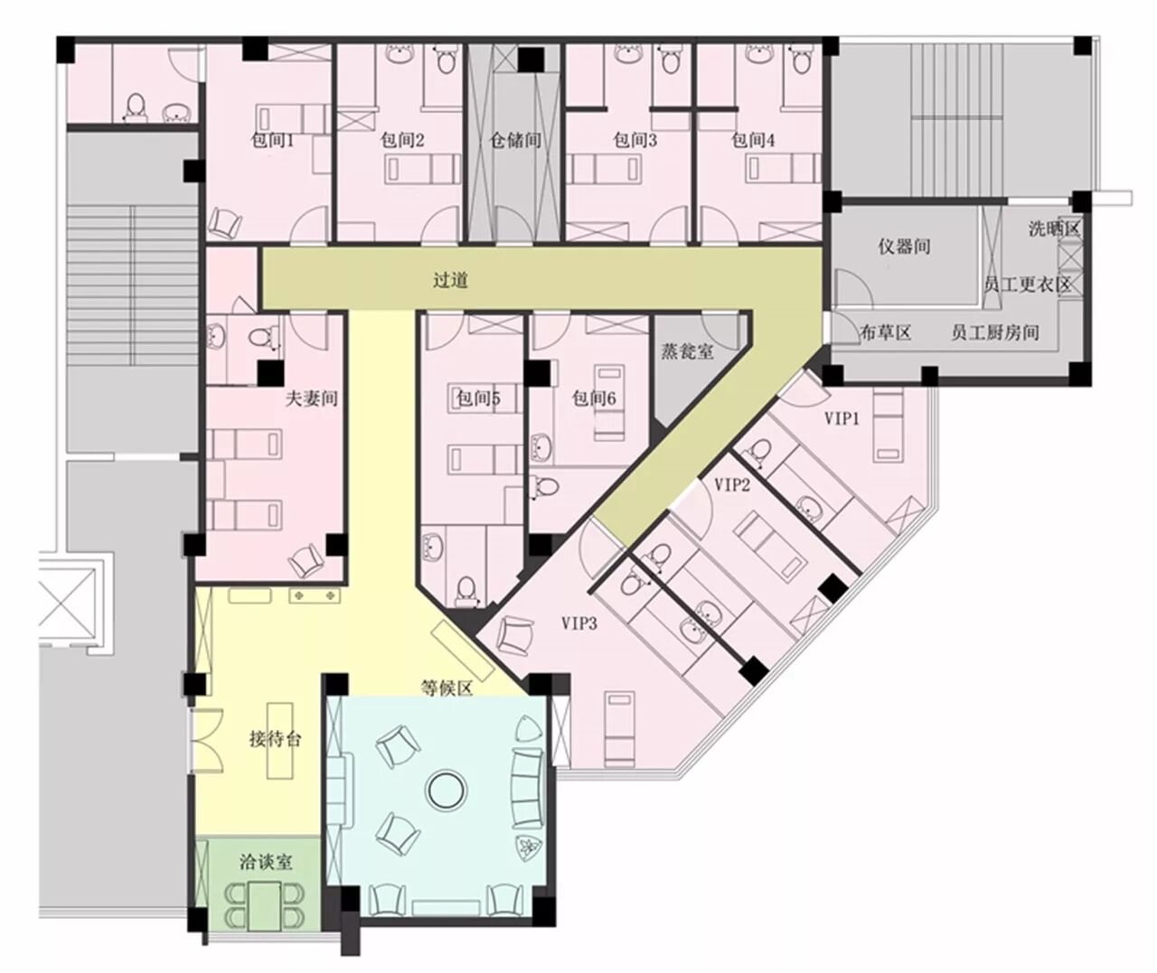
伊颜美容 ( Youray Beauty ) 平面设计图概览

伊颜美容 ( Youray Beauty ) 平面设计图

伊颜美容 ( Youray Beauty ) 鸟瞰效果图

伊颜美容 ( Youray Beauty ) 前台效果图

伊颜美容 ( Youray Beauty ) 房间效果图

伊颜美容 ( Youray Beauty ) 现场施工图




 完美的执着,执着的完美


在整个Youray Beauty设计的过程中

我们跟甲方,施工方,空间设计师一起开过的会数不胜数

我们把所有的精力投入在了这个project中

过程中有过质疑,坎坷,矛盾,

但是回过头再看

一切的一切都为了这个“完美结果”而显得微不足道了


我们的甲方在所有我们遇见的施工上的难点上都选择了无条件的尊重我们设计师的设计方案,无一例外

也是因为有伊颜的100%信任

才得以让我们的构想都不只是纸上谈兵


很多设计业的同行都经历过

常常熬了无数个夜晚出来的方案到最后竣工也许这个作品已经被改到面目全非

很庆幸,我们没有经历这样的“妥协”


Youray Beauty的设计受到了几乎所有伊颜的客人的喜欢

营业额也是直线上升

伊颜的老板,也是不止一次的跟我们发微信表示感谢和赞赏

这样的结果就是来自于我们双方的“完美的执着”吧

|

|

|

她执着的相信

我们执着的坚持自己



伊颜美容 ( Youray Beauty ) 大门,白色墙面简单的线条配上黑色大门,加入金色把手增添一份轻奢感

伊颜美容 ( Youray Beauty ) 前台,以黑白金作为主色调,打造一种极简美式风

伊颜美容 ( Youray Beauty ) 洽谈室,沿用黑白金配色,加入些许绿增添一份生机



灵感


我们总说灵感来自生活

首先要懂得生活,会生活

才会在这些有品质的生活里找到灵感

设计总监在美国考察的时候发现

美式的客厅大多都非常宽敞明亮

对此我们将这个特点运用到这次美容院的设计里

让伊颜成为这独具一格拥有敞亮客厅的美容院

同时也称为其一大特色


伊颜美容 ( Youray Beauty ) 客厅

伊颜美容 ( Youray Beauty ) 客厅休息区,在方框走线中加入弧形元素使其更加柔和

伊颜美容 ( Youray Beauty ) 书架,加入金色摆件带给大家一丝奢华感


 Glamour of Space  ×  Youray Beauty Spa


带你脱离量产的陈腔滥调

将北欧与美式现代风大胆mix

使用不同色彩打造出独树一帜的风格 

让你感受到什么叫倾尽真心 ,赋予灵魂的设计


我们运用简单的线条

纯白的墙面以及精心挑选的插画

为前台、洽谈室以及休息区进行了布置

在极简的同时,也不失一份精致

巧妙的使用黑 、白、灰搭配一抹金色

提升整体空间档次




美的归属感


 每个房间都有属于自己的颜色

就如同每一个爱美的女性

各有各的颜色,各有各的美

也许你是清新脱俗的 “ 绿 ”

也许你是高贵大气的 “ 红 ”

也许你是神秘贵气的 “ 蓝 ”

又或者你是俏皮可爱的 “ 黄 ”

都能在这众多风格中,找到属于你的那一个

呈现出时尚女性对美的全新态度



一个房间的墙纸,是色彩敏的融合与协调。

我们设计师专程从国外淘回这些 绝美并有质感的墙纸,

纯色的、印花的。

以她独到的眼光搭配起来,

让每个房间看起来都有属于自己的温度。





所有的装饰细节我们没有遗漏

那些客人们使用的水杯

用餐时所需的餐具

服务所需的托盘

无一不在我们设计的list上




8.

“无局限,不平凡”


厌恶墨守成规

打造独一无二的极尚风格 

让大家真真切切的感受到什么叫赋予灵魂的设计

是我们现在和今后一直会坚持的事情




室内设计:Glamour of Space

室内软装设计与搭配:Glamour of Space

空间规划:Glamour of Space


本文照片、内容均为原创

转载需注明出处


室内软装设计预约热线:028-85173895

找同款:https://shop269772904.taobao.com

或直接在店铺搜索:Glamour of Space



Thank You

感谢阅读


Glamour of Space

软装设计 | 家居装饰买手 | 商业空间VI设计

Tel : 028 - 85173895

WeChat : glamourcreative