极尚设计 | 我们才不土,我们洋气着呢!

浏览: 作者: 来源: 时间:2019-09-26 分类:首页2

PART 1

打破魔咒


固有的见蒂有时候会像一个隐形的魔咒

困着我们想象和思维的灵兽

在一个画好的方框内一成不变的活着

是现如今市场中每一个行业都可能会面临的问题

包括所有人都觉得应该富有创新思维的设计行业

也不免在一次又一次的所谓“流行趋势”中迷失自我

成为一个copy的机器


而其实每一个行业都没有“必须”要去遵守模式

创新在我们这个超快速发展的时代中已经成了最最有利的*********子

而“新”与“旧”并不是天敌

在不断地创新中坚守住根本和原则

才是不断发展的基石


在此次的这个commercial design project里

我们与一个正在打破魔咒的传统行业先行者相遇了

像灵犀在心一般

他们渴望着改变

而我们渴望着成为这个改变中的一份子


PART 2

耳目一新


物业服务是我们都不陌生的行业

如同美食娱乐一般与我们现代都市生活密不可分

我们每一个人都是这个服务行业的受益者

他们让我们的生活更加的安全和便捷


但对于物业管理这个行业来说

大家很难联想到“创新时尚”上面去

他们总是做着既定成规的事情

就好像一个默认的东西

除了本身的服务质量,没人要求更多了


因为传统的思维模式

给物管冠以标签都是“土”、“大龄化”、“传统”

如何在设计上去辅助我们的客户改变大家的印象

就是我们Glamour of Space这次的目标任务

在保留“传统”的同时,给这个行业同时注入新鲜的活力与年轻时尚的元素




PART3

保留传统


所谓传统

世代相传、从历史沿传下来的思想、文化,风俗

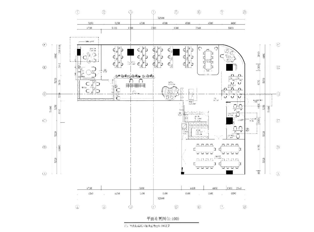
本次设计所及的“传统”之一,便是“风水”

风水是自然界的力量,是宇宙的大磁场能量。

风就是元气和场能,水就是流动和变化。

每个房间的设置和布局,我们都借鉴运用了风水的智慧

每扇门都经过鲁班尺测量,以最适当的尺寸制作






风水要讲究转动,所以绘制平面图时特地给前台预留足够的空间

财位需离老板近,属掌控范围内,于是选择了西北方向


办公室前台左侧设计为墙体做了封闭

可避免财务室直对大门而“漏财”




图纸右下方的大会议室是整个空间的龙头位置

所以休息区屏风没有做到顶是为了不截断风水

让龙尾顺利摆过来




风水学里说“棱角似刀片带有煞气”

长期在带有煞气的环境下工作,整个人的运势会受到影响


所以在整体的设计中,我们使用了大量弧形和圆形

不仅是因为风水的原因,更是因为圆象征团圆、美满

我们希望JG物业管理在全新的办公环境里能圆满的往更好的未来发展



PART 4

改变


毁掉一个空间很简单

但创造一个空间很难



在保留传统的基础上做出颠覆

那更是考验整个设计团队的专业和审美


如何保留开阔的空间,又让领导们保证私密的空间

我们选择了开放式的办公区域,而领导办公室采用了通电玻璃

让在领导办公的同时也能察觉到外面员工的一举一动

既保留了隐私,也增加了与员工的互动性




在整个IN99银泰中心的写字楼里

我们这个办公室可以说是改动最大

并且变化最多的一个空间


整体开放式的设计不仅满足了客户的喜好

也增加了整个空间的通透性与交流氛围

在整个基础建设的过程中

我们争分夺秒

与施工方密切配合以保证工期按时推进




PART 5

呈现


2个月紧锣密鼓的实施

解决了各种原有的空调管道及消防喷淋影响美观的问题

在满足施工规范的同时,使其最大限度的被隐藏

与此同时

我们的设计师搜罗了国内外最好的家具原材料以及经验老到的工人

在每一处的细节中都体现了属于JG的风格


FRONT DESK 

前台


我们使用了超大弧形黄铜镶嵌大理石

在制作工艺上是非常考究工人手艺的


背景的墙砖选用了日本进口清水泥立体瓷砖

质感一流


Office-warming party上不少人跟我们设计方说

一步进门的感觉像是去到了某个设计师酒店的前台准备check-in了



RECEPTION AREA

接待休息区


接待区的设计我们运用了JG物业的VI主色黄,蓝,黑

去强烈整个企业的品牌识别度

蓝色丝绒沙发与圆形黄色挂画

相对色的冲撞,让整个空间的色彩显得非常舒服,富有活力


定制的黑色木质屏风让接待区与茶水区一幕之隔

既现代、简约,又保留一丝中式的韵味




屏风背面的茶水区采用大理石嵌入实木工艺吧台

搭配金色吧凳

午休期间员工可小憩片刻

饮茶聊天




MEETING ROOM

会议室


小会议室使用通透的异形玻璃

既避免了走路时碰撞到尖角

也增加了整体线条的呼应感


金色的几何吊灯,寓意着让大家创意无限

在这里随时可以开启头脑风暴

调动起整个办公室的积极性和工作氛围









大会议室可容纳80人同时入座

左侧墙面设计师选择了美国进口岩板

将日本建筑大师安藤忠雄的经典设计运用到室内

使其个性但不死板,传统但不失时尚


特别值得一提的是墙面上的字

“The Best way to predict the future is to create it”

预测未来最好的方法,就是去创造它


我们希望以这样一句话激励每一个公司的员工

不要因为自己所处的行业而局限自己的想法

我们要做的,是去创造去改变去颠覆

让更多的不一样发生,让奇迹变为一种常态

再从常态变成一种莫大的自然

最后把未来变成我们的




MANAGER'S OFFICE

总经理办公室


办公室的超高2.7m木门拼接玻璃

在各个材料收口上我们的设计师都考虑完备

木门的设计可以避免交流时不隔音

玻璃门则难以做到


READING ZONE

阅读区


在空间规划的时候这个空间其实是一个死角

因为它所处的位置刚好在一个拐角又有1.3米宽的承重柱体

无法设立一个办公室,也无法放下办公桌

后设计师经过思考后决定将这个空间作为一个开放式的阅读区

靠柱体定制的简约书架可以存放员工们捐赠的书籍

作为知识交流的一个渠道

这样既恰到好处的运用其这个空间

又能调动起整个团队的学习氛围




CHAIRMAN'S OFFICE

董事长办公室


董事长办公室临对整个开放办公区

左侧坐拥27层的高层美景

整个空间大气简洁但不失设计感

办公室右侧设计划分了单独的洽谈区

高品质的家具在整个空间中衬托了品质感

比利时Objectum的实木扶手帆布椅

丹麦Sketch的实木书架

Jolor实木办公桌、丹麦Georg Jensen的不锈钢花瓶


每一个细节我们都认真处理

追求极致 更求极尚




公共办公区


我们选用了浅木色配黑色的办公桌

给公区增加一些层次和质感

每个座位之间没有任何隔挡

这样也更加方便了同事之间进行工作上的交流和探讨


前台背后的发展墙也是由我们设计亲自设计

为了搭配整个办公区的氛围

我们选择了圆圈和黑色不锈钢字体

下面的花台也带来栩栩生机

预示着JG物业

也能如这些植物一样朝气蓬勃的奋发向前



GRAPHIC DESIGN

平面设计


在整个项目竣工后

我们的设计师更是为JG设计了与之目前室内风格搭配的VI

从空间到平面

全面的升级蜕变


全新的设计使整个企业的对内对外的形象整体一致

拥有了属于自己的标签



CONCLUSION

结尾的不是啰嗦的啰嗦


所谓魔咒的破除

就是要改变人们的固化思维

谁说物业公司必须一板一眼?

我们一直都用你意想不到的方式

给你呈现不一样的美感




室内设计:Glamour of Space

室内软装设计与搭配:Glamour of Space



本文照片、内容均为原创

转载需注明出处



室内软装设计预约热线:028-85173895

找同款:https://shop269772904.taobao.com

或直接在店铺搜索:Glamour of Space




Thank You

感谢阅读


Glamour of Space

室内设计 | 软装设计 | 家居装饰买手 

Tel : 028 - 85173895

WeChat : glamourcreative